
转轴开合式结构,易于安装,便于操作
分割铁芯配合紧密,精度高,磁路损耗小
用于线路和设备的电流测量、监控、和保护
内部窗口大,可以穿过夹钳、电缆或汇流排
| 参 数 | 符 号 | 指 标 |
|---|---|---|
| 额定输入电流 | In | 100A~2000A |
| 额定输出电流 | Io | 1A,5A |
| 额定负载 | RL | 1VA~20VA |
| 精度等级 | ρ | 0.5、1.0 、1.5级 |
| 短时热电流 | - | 20×In |
| 工频耐压 | Vd | 3000V AC/1min |
| 绝缘电阻 | - | ≥1000MΩ/500V DC |
| 工作温度 | Ta | -25℃ ~ +75℃ |
| 环境湿度 | - | ≤85% |
| 工作频率 | f | 50~60Hz |

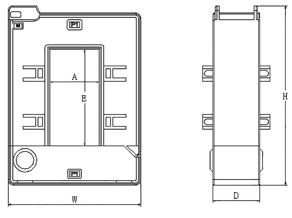
| 产品尺寸 | 外形尺寸 | 穿孔尺寸 | |||
|---|---|---|---|---|---|
| W | H | D | A | E | |
| TRDP(III)-30*20 | 92 | 103 | 40 | 22 | 32 |
| TRDP(III)-60*40 | 115 | 134 | 36 | 42 | 62 |
| TRDP(III)-80*40 | 113 | 153 | 40 | 42 | 82 |
| TRDP(III)-100*40 | 133 | 177 | 40 | 42 | 102 |
| TRDP(III)-120*80 | 152 | 197 | 40 | 82 | 122 |
| 型 号 | 规 格 | 额定负载(VA) | ||
|---|---|---|---|---|
| 0.5级 | 1.0级 | 1.5级 | ||
| TRDP(III)-30*20 | 100A/5A | - | - | 1.5 |
| 150A/5A | - | - | 2 | |
| 200A/5A | - | 1.5 | 2.5 | |
| 250A/5A | - | 1.5 | 3.75 | |
| 300A/5A | 1.5 | 3.75 | 5 | |
| 400A/5A | 2.5 | 3.75 | 5 | |
| TRDP(III)-60*40 | 200A/5A | - | 1.5 | 2.5 |
| 300A/5A | 1.5 | 2.5 | 3.75 | |
| 400A/5A | 1.5 | 2.5 | 3.75 | |
| 500A/5A | 2.5 | 5 | 7.5 | |
| 600A/5A | 2.5 | 5 | 7.5 | |
| 750A/5A | 2.5 | 5 | 7.5 | |
| 800A/5A | 2.5 | 5 | 10 | |
| 1000A/5A | 5 | 7.5 | 10 | |
| TRDP(III)-80*40 | 250A/5A | - | 1.5 | 3.75 |
| 300A/5A | - | 2.5 | 5 | |
| 400A/5A | 1.5 | 2.5 | 5 | |
| 500A/5A | 2.5 | 5 | 7.5 | |
| 600A/5A | 2.5 | 5 | 7.5 | |
| 750A/5A | 2.5 | 5 | 7.5 | |
| 800A/5A | 2.5 | 5 | 10 | |
| 1000A/5A | 5 | 7.5 | 15 | |
| 型 号 | 规 格 | 额定负载(VA) | ||
|---|---|---|---|---|
| 0.5级 | 1.0级 | 1.5级 | ||
| TRDP(III)-100*40 | 500A/5A | 2.5 | 5 | 7.5 |
| 600A/5A | 2.5 | 5 | 7.5 | |
| 750A/5A | 2.5 | 5 | 7.5 | |
| 800A/5A | 2.5 | 7.5 | 10 | |
| 1000A/5A | 5 | 7.5 | 10 | |
| 1200A/5A | 5 | 7.5 | 10 | |
| 1250A/5A | 7.5 | 10 | 20 | |
| 1500A/5A | 7.5 | 10 | 20 | |
| TRDP(III)-120*80 | 500A/5A | 2.5 | 3.75 | 5 |
| 600A/5A | 2.5 | 3.75 | 5 | |
| 750A/5A | 2.5 | 5 | 7.5 | |
| 800A/5A | 5 | 5 | 7.5 | |
| 1000A/5A | 5 | 7.5 | 10 | |
| 1200A/5A | 7.5 | 10 | 15 | |
| 1250A/5A | 10 | 15 | 20 | |
| 1500A/5A | 10 | 15 | 20 | |
| 2000A/5A | 10 | 15 | 20 | |
开口电流互感器安装前必须将其二次与电表(或其他测量装置)接好,确保互感器二次没有开路
将所有接好二次线的开口电流互感器放置现场,等待安装
若现场一次母线为电缆,可进行带电安装;若一次母线为铜排,则带电操作对操作者要求熟练程度比较高,且要求做好绝缘防护措施
安装互感器时,铁芯切面处不得有杂质、灰尘等异物落入,以免影响互感器性能